2021 : la mairie a fait peau neuve

2021 : la mairie a fait peau neuve

Illustration de

Petit journal du chantier

Samedi 3 juillet 2021 : la nouvelle mairie a été inaugurée par Mme le maire en présence de Mme la Sous-préfète, de Nicole Bonnefoy, sénatrice et conseillère départementale, Jérôme Lambert, député et Christian Croizard, président de la communauté de communes de Cœur de Charente.


juin 2021

Les travaux avancent vite et bien : tous les délais sont respectés et les entreprises choisies font du très bon travail avec une coordination menée de main de maître par Christina Spanjers, architecte de l’atelier Cahuette.
La réception du chantier est fixée le 11 mai 2021.
Le déménagement de la mairie (de Saint-Amant-de-Bonnieure à Saint-Angeau) a lieu les 10 et 11 juin.

Mai 2021

Les travaux de peinture et de menuiseries intérieures sont terminées.
Les luminaires sont peu à peu installés.
Les finitions se terminent petit à petit. L’escalier extérieur attend son parement métallique.

Mars-Avril 2021

Les travaux de finition vont bon train. Les peintures (murs et plafonds) sont terminées. Les parois du bureau d’accueil et de la salle du conseil et des mariages (au rez-de-chaussée) et des espaces de distribution à l’étage, peintes en gris anthracite, reçoivent leur habillage de hêtre.
L’escalier central est installé ainsi que ses élégants garde-corps métalliques.
La pompe à chaleur, installée au sous-sol, est mise en route.

Février 2021

L’aménagement intérieur avance et les travaux de peinture vont bientôt commencer.
Les travaux d’électricité sont terminés.
Les détails se précisent avec toutes les finitions à prévoir. Les carreaux de ciment (d’origine) de l’entrée sont bien sûr conservés et remis en état car quelques carreaux étaient cassés.
Les soubassements de la salle du conseil, peints en gris foncés attendent leur habillage de bois clair au-devant. Cet habillage sera également présent sur la grande paroi courbe du bureau d’accueil de la mairie.
À l’extérieur, les volets ont été repeints.

Janvier 2021

Les cloisons sont posées au rez-de-chaussée et à l’étage : les volumes des pièces se dessinent ainsi nettement.
Au rez-de-chaussée : l’espace d’accueil du public prend forme avec son espace ouvert et son bureau de confidentialité, à l’arrière se situent une zone pour la reprographie, l’accès à la cave et aux toilettes. Les murs de la salle du conseil et des mariages ont été repeints et le soubassement sera habillé de bois.
À l’étage, l’espace unique (autrefois salle des fêtes) a été divisé en quatre bureaux et un espace tisanerie.
L’escalier central, en face de la porte d’entrée, sera posé courant février.

Décembre 2020

Les fenêtres du rez-de-chaussée sont installées.
La cage d’escalier central est percée.
L’installation des réseaux d’électricité et de chauffage suit son cours.
La salle du conseil est débarrassée de son ancienne moquette murale et les murs sont en attente d’une peinture. Les soubassements en lambris sont en train d’être poncés.
À l’étage, comme au rez-de-chaussée, l’isolation des murs et des plafonds est terminée.

Novembre 2020

Les nouvelles fenêtres en bois sont posées au premier étage.
Le plancher du rez-de-chaussée (côté secrétariat) a été déposé et reposé.
Les cloisons du rez-de-chaussée sont posées et la pièce d’accueil du public prend forme peu à peu.
À l’étage les poutres de support du faux-plafond sont mises en place.

Octobre 2020

La charpente a été reprise et la toiture est presque terminée. Les anciennes tuiles plates mécaniques ont été remplacées à l’identique.

Septembre 2020

Le réaménagement de la mairie est un enjeu est important pour notre commune nouvelle. Ce bâtiment est en effet très symbolique : il s’agit de la « maison commune », celle où les habitants se rencontrent, viennent effectuer des démarches importantes pour leur vie quotidienne, se marient, celle où le conseil municipal se réunit,celle où les employés de la commune travaillent et accueillent le public.

Interview de l’architecte

Nous avons souhaité partager avec vous un moment d’échanges avec Christina Spanjers (atelier Cahuette), l’architecte sélectionnée pour ce projet, à l’occasion de la première réunion de chantier du 1er septembre 2020.

Parlez-nous de ce projet et ce qu’il a de particulier dans votre parcours d’architecte.

Christina Spanjers : Alors, vraiment, c’est de la crème ce chantier ! C’est rare de travailler avec des maîtres d’ouvrage qui sont dans la démarche de valoriser leur patrimoine, qui ont un projet collectif et qui le portent activement tout en nous faisant confiance dans notre mission d’architecte. Les gens ont bien souvent des idées préconçues sur le travail que l’on doit fournir. Là, nous avons eu la liberté de proposer, d’esquisser le projet et nous avons été très rapidement sur la même longueur d’ondes. L’écoute de l’équipe des élus est précieuse pour nous et on apprend les uns des autres, au fur et à mesure de l’avancée du projet.

Comment abordez-vous ce chantier qui démarre ?
Christina Spanjers : Avec beaucoup d’enthousiasme et j’ai hâte de voir le résultat ! L’équipe des professionnels du bâtiment sélectionnée est prometteuse. Cela ne va pas être de tout repos car douze corps de métiers vont intervenir. Je vais donc avoir beaucoup de choses à gérer. Mon rôle n’est pas seulement de valider ou de sanctionner... je me vois avant tout comme un chef d’orchestre.

Parlez-nous de l’atelier Cahuette

Christina Spanjers : Cela fait seulement trois ans que Cécile Bouillon et moi-même avons créé notre atelier. Nous avons un goût particulier pour les chantiers de rénovation, comme celui-ci. On voit le bâtiment comme un « organisme vivant » et on essaie de « l’écouter ». Avant tout chose, on prend le temps de s’immerger complètement dans le bâtiment, de l’observer sous toutes ses coutures, de comprendre son fonctionnement et ses articulations. Cette première phase permet déjà de se projeter en étant au plus proche de ce qu’il est capable d’accepter. On ne fait pas un projet dans de l’ancien comme on fait un projet dans le neuf ! Mon rôle d’architecte est de le mettre en valeur, de le servir.

Quels matériaux avez-vous proposés pour cette rénovation ?

Christina Spanjers : Mes choix sont guidés par les notions de durabilité et de compatibilité. Les matériaux et les techniques sélectionnés doivent aller dans le sens de la nature du bâtiment. Par exemple, on remplace un plancher bois par un autre plancher bois là où le bureau d’études aurait opté pour un sol béton. Pour tous les détails du projet, le bois est très présent et j’ai souhaité jouer sur le trio matières-textures-couleurs avec beaucoup d’authenticité mais aussi de douceur. Je veux que les gens se sentent bien dans la mairie. Ici, dans la salle du conseil, le travail consiste à trouver l’équilibre entre les bois clairs et foncés, par exemple. Il faut que ce soit chaleureux tout en étant techniquement adapté (chauffage, acoustique, éclairage) et que la lumière soit agréable partout.

Dans les détails que vous avez conçus, lequel avez-vous le plus hâte de voir se concrétiser ?
Christina Spanjers : Je dirais l’escalier central avec ses marches en bois et les garde-corps métalliques. Je suis impatiente aussi de voir le rendu des parois courbes et ses habillages de bois clair. J’ai en même temps une petite appréhension... j’espère que tout va bien se passer dans la réalisation.

Comment avez-vous pensé aux habitants en concevant le projet ?
Christina Spanjers : Je me suis demandée si en étant dans cette mairie j’aurais envie d’habiter dans cette commune. Une mairie qui est douce, accueillante, au goût du jour est à l’image de la façon dont on peut vivre dans la commune.

2e semestre 2019

Pour mener à bien les travaux d’aménagement intérieur de la mairie de Val-de-Bonnieure à St-Angeau, la municipalité s’est adjointe les services de l’ATD16 (Agence Technique Départementale de la Charente) en matière de maîtrise d’ouvrage.
L’appel d’offres pour la maîtrise d’œuvre a été lancé en juin 2019.

Cinq cabinets d’architectes ont répondu et le choix s’est porté sur l’atelier Cahuette (Angoulême) composé de deux architectes : Christina Spanjers & Cécile Bouillon, très attachées aux travaux de réhabilitation de bâtiments anciens. Elles travaillent en co-traitance avec une économiste, un bureau d’études structures et un bureau d’études thermique fluide et électrique.

Un diagnostic préalable
Cette équipe a déjà réalisé le diagnostic complet du bâtiment avant travaux révélant des besoins indispensables de réfection de la couverture, consolidation de la charpente, consolidation de certains planchers, remplacement des éclairages (tous vétustes) et interrupteurs... Le diagnostic a également permis de détecter l’attaque de capricornes dans la charpente qu’il a fallu traiter urgemment pour stopper le phénomène : le problème a été fort heureusement pris à temps.

Les orientations du projet de réhabilitation et points de vigilance :

  • loger les services nécessaires pour le fonctionnement de la mairie
  • optimiser le fonctionnement du bâtiment et améliorer sesperformances énergétiques
  • adapter les locaux aux exigences d’accessibilité
  • valoriser ce bâti situé en cœur de bourg de Saint-Angeau
  • viser à une meilleure gestion de la lumière dans les bureaux
  • revoir la distribution des espaces et rendre les fonctions du bâtiment plus lisibles
  • aménager des espaces de discrétion nécessaires au service public
  • établir des sanitaires en rez-de- chaussée (actuellement au sous- sol).

Les travaux d’aménagement intérieur porteront, au rez-de-chaussée, sur la réorganisation de l’espace d’accueil du public et des bureaux du secrétariat. La salle des mariages et du conseil sera conservée en l’état et juste « rafraîchie ».

À l’étage, l’ancienne salle des fêtes sera cloisonnée afin de créer des bureaux, des espaces de réunion, une tisanerie et des espaces de rangement.

Pendant la durée des travaux, les services administratifs de la mairie se sont installés à la mairie de St-Amant-de-Bonnieure.

Partagez cet article sur votre réseau

Portfolio

Illustration de Inauguration le 3 juillet 2021
Inauguration le 3 juillet 2021
Illustration de Inauguration le 3 juillet 2021
Inauguration le 3 juillet 2021
Illustration de Salle du conseil et des mariages - mai 2021
Salle du conseil et des mariages - mai 2021
Illustration de Espace d'accueil du public - mai 2021
Espace d’accueil du public - mai 2021
Illustration de Escalier central - mai 2021
Escalier central - mai 2021
Illustration de Bureau du maire et des adjoints au premier étage - mai 2021
Bureau du maire et des adjoints au premier étage - mai 2021
Illustration de Bureau secrétariat - premier étage - avril 2021
Bureau secrétariat - premier étage - avril 2021
Illustration de Palier du premier étage - avril 2021
Palier du premier étage - avril 2021
Illustration de Étage, escalier et accès aux différents bureaux - avril 2021
Étage, escalier et accès aux différents bureaux - avril 2021
Illustration de Tisanerie, premier étage - avril 2021
Tisanerie, premier étage - avril 2021
Illustration de Escalier central - avril 2021
Escalier central - avril 2021
Illustration de Salle du conseil et des mariages - avril 2021
Salle du conseil et des mariages - avril 2021
Illustration de Espace d'accueil du public - avril 2021
Espace d’accueil du public - avril 2021
Illustration de Angle Sud-Ouest - mars 2021
Angle Sud-Ouest - mars 2021
Illustration de Escalier central - mars 2021
Escalier central - mars 2021
Illustration de Espace d'accueil du public - mars 2021
Espace d’accueil du public - mars 2021
Illustration de Salle du conseil et des mariages - mars 2021
Salle du conseil et des mariages - mars 2021
Illustration de Étage, escalier et accès aux différents bureaux - mars 2021
Étage, escalier et accès aux différents bureaux - mars 2021
Illustration de Bureau du maire et des adjoints au prmeier étage - mars 2021
Bureau du maire et des adjoints au prmeier étage - mars 2021
Illustration de Février 2021 : façade
Février 2021 : façade
Illustration de Décembre 2020 - salle du conseil en cours de réfection
Décembre 2020 - salle du conseil en cours de réfection
Illustration de décembre 2020 - Façade principale
décembre 2020 - Façade principale
Illustration de décembre 2020 - Façade côté place Arsène Roudy
décembre 2020 - Façade côté place Arsène Roudy
Illustration de Décembre 2020 - salle du conseil
Décembre 2020 - salle du conseil
Illustration de décembre 2020 - rez-de-chaussée cage d'escalier
décembre 2020 - rez-de-chaussée cage d’escalier
Illustration de décembre 2020 - étage avant cloisonnement
décembre 2020 - étage avant cloisonnement
Illustration de décembre 2020 - étage avant cloisonnement
décembre 2020 - étage avant cloisonnement
Illustration de Rez-de-chaussée : entrée accueil public
Rez-de-chaussée : entrée accueil public
Illustration de Rez-de-chaussée : accueil public
Rez-de-chaussée : accueil public
Illustration de Couverture en cours de réfection, octobre 2020
Couverture en cours de réfection, octobre 2020
Illustration de Travaux de couverture
Travaux de couverture
Illustration de Travaux de couverture par l'entreprise Lascoux
Travaux de couverture par l’entreprise Lascoux
Illustration de L'espace secrétariat : supression des cloisons et dépose du plancher
L’espace secrétariat : supression des cloisons et dépose du plancher
Illustration de Plan de la cave / avant travaux
Plan de la cave / avant travaux
Illustration de Plan de la cave / projet
Plan de la cave / projet
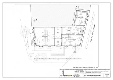
Illustration de Plan du rez-de-chaussée / avant travaux
Plan du rez-de-chaussée / avant travaux
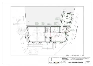
Illustration de Plan du rez-de-chaussée /projet
Plan du rez-de-chaussée /projet
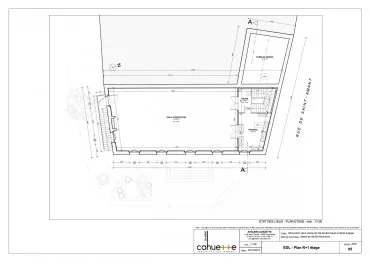
Illustration de Plan de l'étage / avant travaux
Plan de l’étage / avant travaux
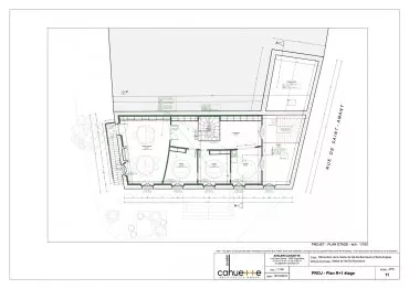
Illustration de Plan de l'étage / projet
Plan de l’étage / projet
Illustration de Façade / avant travaux
Façade / avant travaux
Illustration de Façade / projet
Façade / projet
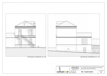
Illustration de Façades nord et sud / avant travaux
Façades nord et sud / avant travaux
Illustration de Façades nord et sud / projet
Façades nord et sud / projet
Illustration de La mairie avant travaux
La mairie avant travaux
Illustration de Décembre 2020 - entrée de la mairie avec cage du futur escalier en face de la porte
Décembre 2020 - entrée de la mairie avec cage du futur escalier en face de la porte
Illustration de Décembre 2020 - façade avec les nouvelles fenêtre bois
Décembre 2020 - façade avec les nouvelles fenêtre bois
Illustration de Décembre 2020 - bureau d'accueil (en entrant, à droite)
Décembre 2020 - bureau d’accueil (en entrant, à droite)
Illustration de Décembre 2020 - cage du futur escalier vue du rez-de-chaussée
Décembre 2020 - cage du futur escalier vue du rez-de-chaussée
Illustration de Décembre 2020 - étage avant cloisonnement
Décembre 2020 - étage avant cloisonnement
Illustration de
Illustration de
Illustration de